UG10.0怎么建模三维立体佛门的万字标记?
百度经验 发布时间:2020-01-06 08:44:31 作者:梦境我做主
我要评论
UG10.0怎么建模三维立体佛门的万字标记?经常使用ug建模一些立体的图标,想要创建万字标记,该怎么设计呢?下面我们就来看看详细的教程,需要的朋友可以参考下
UG10.0如何建模佛门的万字标记?惊今天我们就来看看使用ug制作立体图标的方法,如下图所示。

1、如下图所示,打开UG10.0软件,新建一个空白的模型文件,然后另存,用“万字标记”命名。

2、如下图所示,点击工具栏中的拉伸图标,点击基准坐标系中的XY平面。

3、如下图所示,进入草图,激活矩形命令,随手画一个矩形,双击修改尺寸,100x100,边距离轴50,激活偏置曲线命令,向内偏移10。

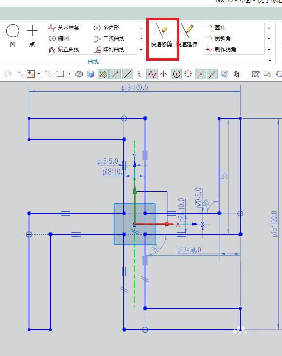
4、如下图所示,激活直线命令,画两条竖直的平行的直线段和两条水平的平行的直线段,激活快速尺寸命令,标注尺寸5、10、5、10。

5、如下图所示,点击工具栏中的“快速修剪”,按照下图所示进行修剪操作,最后形成一个空心的“卐”,点击完成,退出草图。

6、如下图所示,回到拉伸对话框,设置拉伸限制为:从0开始,到10结束。

7、如下图所示,激活工具栏中边倒圆命令,然后两次边倒圆R1即可。

8、如下图所示,部件导航器中将基准坐标系隐藏,将显示改成着色。

9、如下图所示,标题栏中点击“渲染”,工具栏中点击“真实着色”,工具栏中点击“全局材料绿色亮泽塑料”。
最后的效果就是下图所示的了。

以上就是UG10.0建模三维立体佛门的万字标记的教程,希望大家喜欢,请继续关注脚本之家。
相关推荐:
相关文章
UG模型怎么制作曲线滚边的圆角?ug中的模型想要添加圆角,该怎么制作不规则的圆角效果呢?下面我们就来看看详细的教程,需要的朋友可以参考下2018-07-20
UG怎么创建桥接板?ug中想要创建桥接板子零件,该怎么创建呢?下面我们就来看看UG桥接板建模教程,很简单,需要的朋友可以参考下2018-07-18
UG怎么使用建模曲线创建简单模型?ug建模三维模型很简单,想要创建模型,该怎么创建呢?下面我们就来看看详细的教程,需要的朋友可以参考下2018-07-15
UG草绘视图歪了该怎么调正?UG绘制草图的时候,发现视图歪了,看的脖子疼,想要调整视图,该怎么调整呢?下面我们就来看看详细的教程,需要的朋友可以参考下2018-07-13
UG12.0怎么创建固定轴座模型?UG12.0中想要制作一个固定轴座,该怎么绘制这个轴座呢?下面我们就来看看详细的教程,需要的朋友可以参考下2018-07-11
UG8.0创建零件模型很简单,怎么对深度轮廓进行加工呢?下面我们就来看看使用ug8.0对深度轮廓进行加工的教程,需要的朋友可以参考下2018-07-02
UG工程图怎么设置不剖切加强筋?ug剖视图中的有些部件不想要要剖切,该怎么设置呢?我们怎么不剖切加强筋呢?下面我们就来看看详细的教程,需要的朋友可以参考下2018-06-28
UG12.0不使用筋板命令怎么创建加强筋?UG12.0中一半会使用筋板命令创建加强筋,但是也有别的方法可以创建加强筋,下面我们就来看看详细的教程,需要的朋友可以参考下2018-06-22
UG12.0草图大师怎么画五角星?UG12.0中想要画一个平面的五角星,该怎么画呢?下面我们就来看看详细的教程,很简单,需要的朋友可以参考下2018-06-21
UG12.0怎么快速建模三维倾斜支架零件?UG12.0中想要使用同步建模工具建模支架,该怎么建模呢?下面我们就来看看详细的教程,需要的朋友可以参考下2018-06-19













最新评论